- Home
- Residential
- Detached
- 969 South Shore Terrace, Chestermere, Alberta, T1X 0B4
969 South Shore Terrace, Chestermere, Alberta, T1X 0B4
- Detached, Residential
- A2292767
- MLS Number
- 4
- Bedrooms
- 3
- Bathrooms
- 2886.00
- sqft
- 2026
- Year Built
Property Description
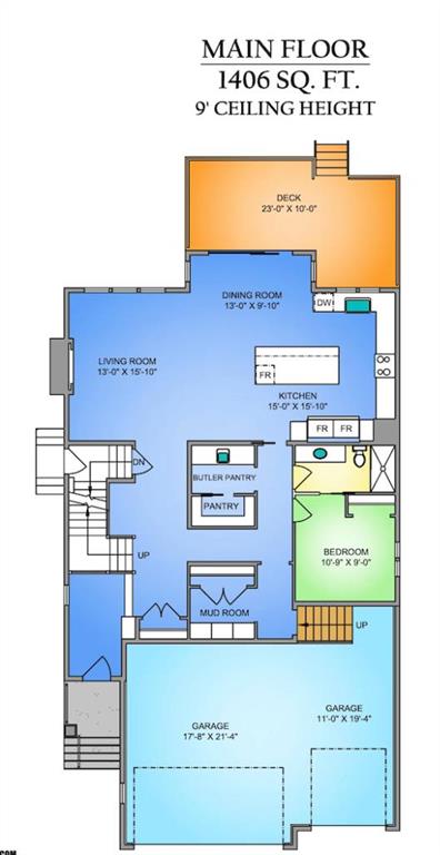
Award-winning Alliston at Home presents an exceptional estate home in the prestigious lakeside community of South Shore in Chestermere. This elegant residence features shy of 2900 sq. ft. of beautifully designed living space, offering 4 bedrooms, 3 full bathrooms, and a separate entrance to the basement, ready for your design ideas. This Home offers space for the whole family to grow and is located just steps from the lake. Step inside to airy 9' ceilings and engineered hardwood floors that span the expansive main floor. The showstopper kitchen is complemented by upgraded floor-to-ceiling two-tone cabinetry, an extensive island with quartz countertops, sleek stainless-steel appliances with a gas range, and a butler's pantry offering additional prep space. The open-concept dining room and living room are perfect for entertaining, and the living room features a striking floor-to-ceiling fireplace. The main-floor bedroom is perfect for multigenerational living, with a full bathroom and an oversized walk-in shower. The mudroom off the triple-attached garage is a great space for all the kids' odds and ends and keeps life organized. Step outside to the impressive 23' deck, perfect for outdoor dining, summer gatherings, or relaxing evenings. Upstairs, the Home offers a thoughtfully designed retreat for the entire family. The primary suite is a private sanctuary featuring a large walk-in closet and a luxurious 5-piece spa-inspired ensuite with a soaker tub and oversized walk-in shower. Two additional bedrooms with walk-in closets, another full 5-piece bathroom with dual sinks, make kids' bedtime a breeze; the upper laundry adds convenience; and a generous family/bonus room provides space for both relaxation and everyday living. The unfinished basement with 9' ceilings and a separate entrance is ready for your design ideas. Located in the highly sought-after South Shore community, this Home offers easy access to Chestermere Lake, scenic walking paths, parks, schools, and convenient commuting to Calgary.
Property Details
-
Property Size 2886.00 sqft
-
Land Area 0.13 sqft
-
Bedrooms 4
-
Bathrooms 3
-
Garage 1
-
Year Built 2026
-
Property Status Active
-
Property Type Detached, Residential
-
MLS Number A2292767
-
Brokerage name LPT Realty
-
Parking 6
Features & Amenities
- 2 Storey
- Asphalt Shingle
- Bar Fridge
- Deck
- Dishwasher
- Double Vanity
- Electric
- Fishing
- Forced Air
- Full
- Gas Range
- High Ceilings
- Kitchen Island
- Lake
- Microwave
- Open Floorplan
- Other
- Pantry
- Park
- Playground
- Quartz Counters
- Range Hood
- Refrigerator
- Separate Entrance
- Shopping Nearby
- Sidewalks
- Street Lights
- Triple Garage Attached
- Walking Bike Paths
- Washer Dryer
Similar Listings
105 Westpoint Way SW, Calgary, Alberta, T3H 2A5
West Springs, Calgary- Detached, Residential
- 4 Bedrooms
- 4 Bathrooms
- 2839.88 sqft
2019 21 Avenue NW, Calgary, Alberta, T2M 1M9
Banff Trail, Calgary- Semi Detached (Half Duplex), Residential
- 5 Bedrooms
- 4 Bathrooms
- 1991.57 sqft
121 Cousin Street, Rural Wheatland County, Alberta, T1P 0X8
NONE, Rural Wheatland County- Detached, Residential
- 4 Bedrooms
- 3 Bathrooms
- 1656.48 sqft
941 4A Street NW, Calgary, Alberta, T2N 1P8
Sunnyside, Calgary- Semi Detached (Half Duplex), Residential
- 3 Bedrooms
- 5 Bathrooms
- 2505.77 sqft
