- Home
- Residential
- Semi Detached (Half Duplex)
- 2716 3 Avenue NW, Calgary, Alberta, T2N 0L7
2716 3 Avenue NW, Calgary, Alberta, T2N 0L7
- Residential, Semi Detached (Half Duplex)
- A2280534
- MLS Number
- 4
- Bedrooms
- 5
- Bathrooms
- 2653.40
- sqft
- 2026
- Year Built
Property Description
Located in WEST HILLHURST, this modern SEMI-DETACHED NON SUITED infill delivers the kind of layout and design that simply works for inner-city living. Clean architecture, generous windows, and multiple outdoor spaces set the tone and well-suited for daily life near the river, downtown, and some of Calgary’s most established amenities.
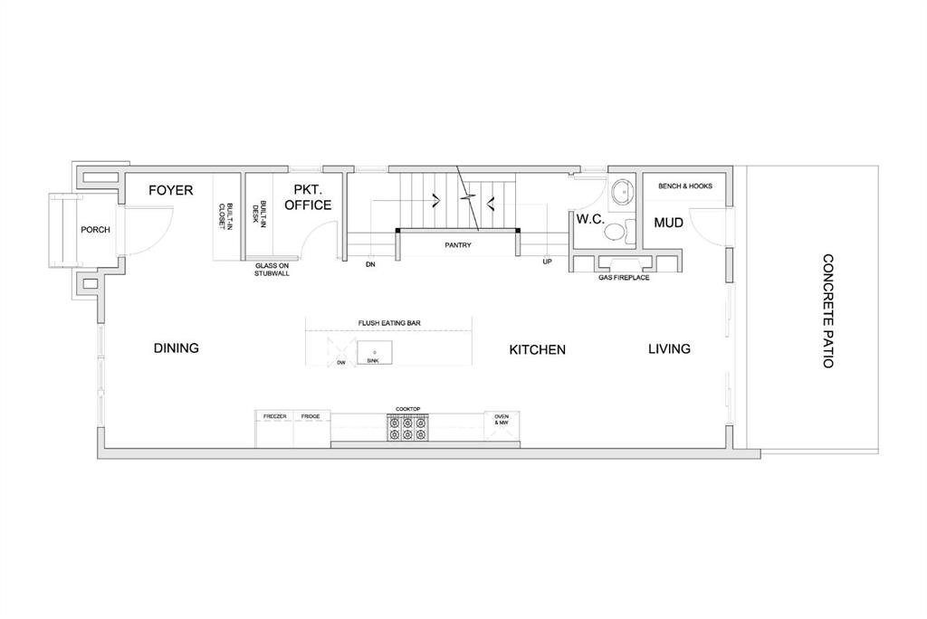
A defined foyer creates a proper sense of arrival and keeps the main living areas feeling calm and composed. Just off the entry, a POCKET OFFICE with built-ins and glass detailing offers a dedicated work or study space without disrupting the flow. The main floor opens into a dedicated dining area that naturally connects to the kitchen, creating an easy rhythm for daily life.
The kitchen anchors the home with a large island featuring bar seating and an integrated sink. The appliance layout is designed for real use, keeping prep and cooking zones efficient and intuitive, with a full-size side-by-side fridge/freezer, gas cooktop, and wall oven. A BUILT-IN PANTRY provides generous storage while maintaining clean sightlines. At the back of the home, the living room feels warm and inviting with a GAS FIREPLACE and expansive patio doors that open to the CONCRETE PATIO, extending the living space outdoors. A discreet powder room and a well-designed MUDROOM with BENCH AND HOOKS complete the main level.
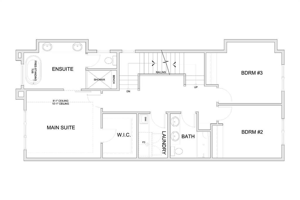
Upstairs, the second floor is dedicated to rest and privacy. The primary bedroom is a calm retreat, finished with a TRAY CEILING that adds subtle architectural interest. The ensuite includes a FREESTANDING TUB, dual sinks, and a separate shower with bench seating. Two additional bedrooms are thoughtfully positioned away from the primary and share a full bathroom with dual sinks, and the laundry room is placed right in the middle of the layout for ease.
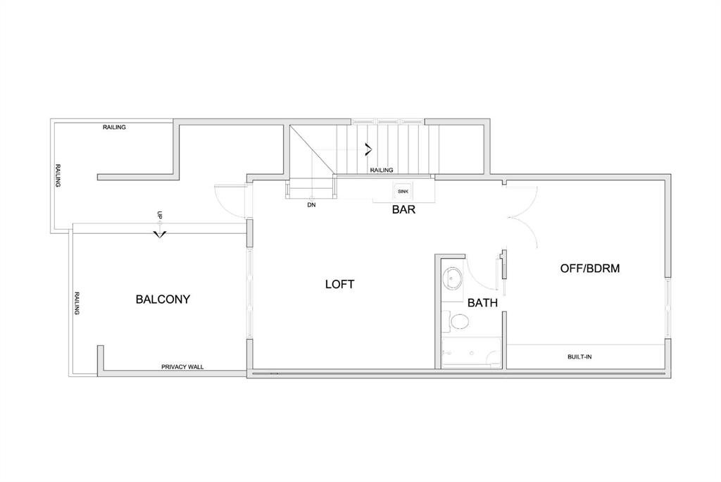
The upper loft level adds a lifestyle layer rarely found in inner-city homes. A spacious loft with a BAR and sink works as a media lounge or entertaining space, while a FLEX ROOM adapts easily as an office or guest room, complete with pocket door access to the 4-pc bath. Outside, a BALCONY offers an outdoor retreat, creating a private, elevated escape with room to relax or host.
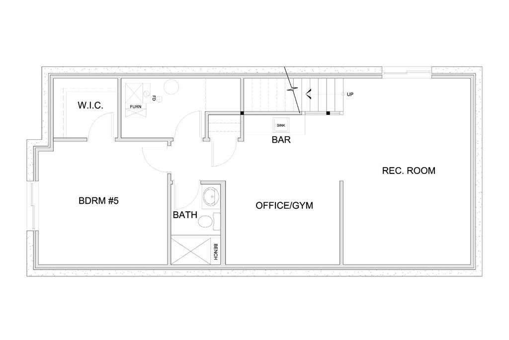
The fully developed basement continues the theme of flexibility and function. A large rec room is paired with a SECOND WET BAR and an OFFICE OR GYM space adapts easily to your needs. A 5th bedroom with walk-in closet and a full bath makes this level comfortable for guests or extended family.
Located in WEST HILLHURST, this home is minutes from the Bow River pathway system, West Hillhurst Community Centre, and Helicopter Park. Nearby schools include West Hillhurst School, Queen Elizabeth School, and Westmount Charter School. Kensington’s shops, cafes, and services along Kensington Rd and 10 S NW are close at hand, with quick access to downtown, Foothills Medical Centre, Alberta Children’s Hospital, and Memorial Dr. A walkable, established inner-city lifestyle with everything within reach.
Property Details
-
Property Size 2653.40 sqft
-
Land Area 0.07 sqft
-
Bedrooms 4
-
Bathrooms 5
-
Garage 1
-
Year Built 2026
-
Property Status Active
-
Property Type Semi Detached (Half Duplex), Residential
-
MLS Number A2280534
-
Brokerage name RE/MAX House of Real Estate
-
Parking 2
Features & Amenities
- 3 or more Storey
- Asphalt Shingle
- Attached-Side by Side
- Bar
- Built-in Features
- Built-In Oven
- Clubhouse
- Dishwasher
- Double Garage Detached
- Double Vanity
- Electric
- Forced Air
- Freezer
- Full
- Garage Control s
- Gas Cooktop
- High Ceilings
- Kitchen Island
- Microwave
- Open Floorplan
- Other
- Pantry
- Park
- Playground
- Range Hood
- Recessed Lighting
- Refrigerator
- Rough-In
- Schools Nearby
- See Remarks
- Shopping Nearby
- Sidewalks
- Storage
- Tray Ceiling s
- Walking Bike Paths
- Wet Bar
Similar Listings
412 40 Avenue SW, Calgary, Alberta, T2S 0X6
Elbow Park, Calgary- Detached, Residential
- 5 Bedrooms
- 5 Bathrooms
- 3073.23 sqft
268 Springbluff Bay SW, Calgary, Alberta, T3H 5B7
Springbank Hill, Calgary- Detached, Residential
- 4 Bedrooms
- 4 Bathrooms
- 2940.00 sqft
125 Monarch Bend NW, Rural Rocky View County, Alberta, T3Z 0K4
Harmony, Rural Rocky View County- Detached, Residential
- 4 Bedrooms
- 4 Bathrooms
- 1354.80 sqft
1248 16A Street NW, Calgary, Alberta, T2N 2E1
Hounsfield Heights/Briar Hill, Calgary- Detached, Residential
- 4 Bedrooms
- 4 Bathrooms
- 3282.00 sqft
