- Home
- Residential
- Detached
- 131 Greenwich Heath NW, Calgary, Alberta, T3B 6P2
131 Greenwich Heath NW, Calgary, Alberta, T3B 6P2
- Detached, Residential
- A2282431
- MLS Number
- 6
- Bedrooms
- 6
- Bathrooms
- 2637.00
- sqft
- 2026
- Year Built
Property Description
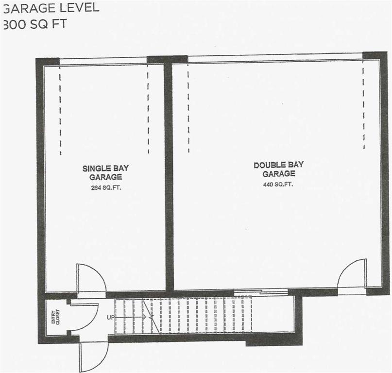
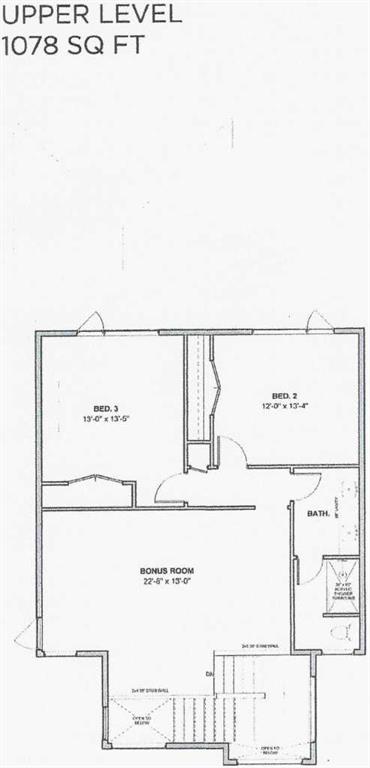
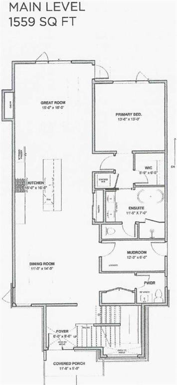
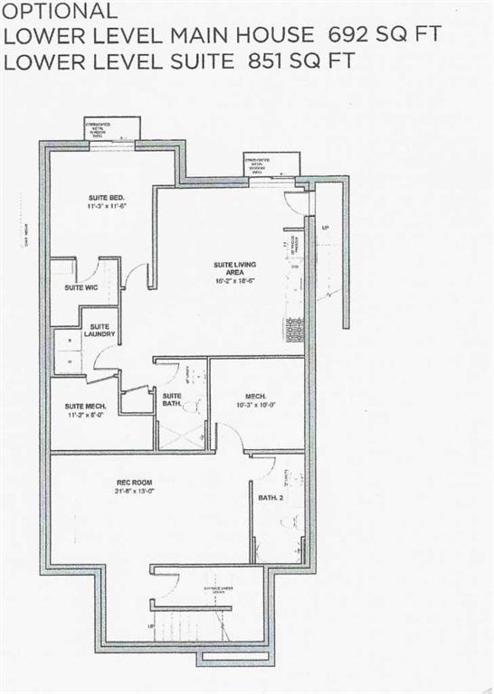
MULTI-GENERATIONAL LIVING/INCOME POTENTIAL! The Nolita II offers 2,637ft2 of well-appointed living space. The main floor features a master bedroom with ensuite, an open concept living area that includes a great room, kitchen, and living room, as well as a generous mudroom. The upper floor includes two additional bedrooms, the main bath, and a spacious bonus room. The fully developed basement of this home includes a finished recreation room and full bathroom for the main house plus a complete 1-bedroom suite with a separate entrance. The property also includes a detached triple garage with a 2-bedroom fully finished garden suite above. (Suites can be redesigned to make the home 'single-family' living.)
As a Custom Concepts’ Personalized Home this home offers the perfect balance of convenience and customization, allowing you to jump-start the build process by approximately six months. The initial design, permitting, foundation, and framing are already completed, so you can begin personalizing at the rough-in stage. If you're looking for a quicker build process and a faster move-in date with the added benefit of tailoring your home to your design preferences, our Personalized Homes might be the perfect choice for you.
Upper Greenwich is a distinctive community nestled on the west edge of Calgary – an easy commute to downtown with quick access to the Rocky Mountains. Upper Greenwich is a lovely blend of sophisticated urban living in natural surroundings. Walking paths, sport courts, playgrounds and abundant greenspaces can be enjoyed right outside your front door. The HOA ensures upkeep of the amenities of the community and helps bring people together with seasonal celebrations and neighborhood events. Upper Greenwich is a community that is connected, active and thriving!
Property Details
-
Property Size 2637.00 sqft
-
Land Area 0.12 sqft
-
Bedrooms 6
-
Bathrooms 6
-
Garage 1
-
Year Built 2026
-
Property Status Active
-
Property Type Detached, Residential
-
MLS Number A2282431
-
Brokerage name RE/MAX House of Real Estate
-
Parking 3
Features & Amenities
- 2 Storey
- Alley Access
- Asphalt Shingle
- BBQ gas line
- Built-in Features
- Built-In Oven
- Closet Organizers
- Concrete Driveway
- Deck
- Dishwasher
- Double Vanity
- Electric Range
- ENERGY STAR Qualified Dishwasher
- ENERGY STAR Qualified Refrigerator
- Fireplace s
- Full
- Garage Door Opener
- Gas
- Gas Cooktop
- Granite Counters
- High Efficiency
- Insulated
- Kitchen Island
- Microwave
- Microwave Hood Fan
- No Animal Home
- No Smoking Home
- Open Floorplan
- Pantry
- Park
- Patio
- Playground
- Primary Downstairs
- Range Hood
- Refrigerator
- Sidewalks
- Soaking Tub
- Street Lights
- Tennis Court s
- Triple Garage Detached
- Walking Bike Paths
- Washer Dryer Stacked
- Water Conditioner
- Wired for Data
Similar Listings
15 Normandy Lane SW, Calgary, Alberta, T3E 7K1
Currie Barracks, Calgary- Semi Detached (Half Duplex), Residential
- 3 Bedrooms
- 3 Bathrooms
- 1620.00 sqft
#17 1359 69 Street SW, Calgary, Alberta, T3H 3W8
Strathcona Park, Calgary- Row/Townhouse, Residential
- 4 Bedrooms
- 4 Bathrooms
- 3000.00 sqft
2209 Carleton Street SW, Calgary, Alberta, T2T3K4
Upper Mount Royal, Calgary- Detached, Residential
- 3 Bedrooms
- 4 Bathrooms
- 2153.13 sqft
50 Riviera View, Cochrane, Alberta, T4C 0Y7
Riviera, Cochrane- Detached, Residential
- 4 Bedrooms
- 4 Bathrooms
- 2671.00 sqft
