- Home
- Residential
- Detached
- 71 Harrison Green, Olds, Alberta, T4H 1W2
71 Harrison Green, Olds, Alberta, T4H 1W2
- Detached, Residential
- A2244601
- MLS Number
- 5
- Bedrooms
- 4
- Bathrooms
- 2780.00
- sqft
- 2015
- Year Built
Property Description
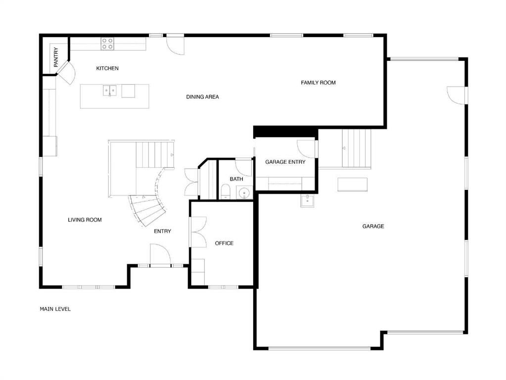
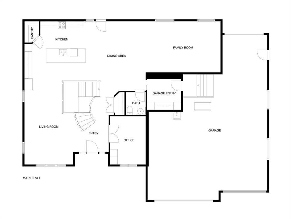
Welcome to this exceptional 5-bedroom luxury home, located on Harrison Green in the Olds Highlands. Situated on a generous lot with a beautiful central green space right out front, this property blends high-end finishes, thoughtful design, and an unbeatable location in one of Olds’ most desirable neighborhoods. From the moment you enter, you're greeted by a grand open staircase and elegant features throughout. The chef’s kitchen is the heart of the home—perfectly designed for entertaining and everyday living—with a large center island, full-size stove, wall oven and microwave, pot filler, wine fridge, and ample work space. There's also plenty of room for a large dining table, making it ideal for hosting family gatherings and dinner parties. Beside the dining area, a cozy, tucked-away family/TV room offers a perfect spot to unwind, separated by a double-sided fireplace that adds warmth and ambiance to both spaces. Enjoy total comfort in the 3-season east-facing enclosed patio room, perfect for morning coffee or evening relaxation. Step outside to a beautifully landscaped yard with a hot tub, rear shed with power, and a full irrigation system keeping the lawn green and lush. All five bedrooms feature walk-in closets, and the primary suite is a true retreat with a spa-inspired ensuite, including a freestanding tub and a double-sided fireplace shared with the bedroom—offering the perfect blend of comfort and luxury. The fully finished basement features in-floor heating, wet bar, a home theatre, and two large bedrooms—perfect for teenage children, guests, or visiting grandchildren needing space and privacy. Car lovers and hobbyists will appreciate the heated 4-car garage, complete with in-floor heat, a car hoist, air compressor with air lines throughout, and plenty of space for vehicles, tools, and toys. Additional highlights include a reverse osmosis water system, upgraded lighting, and premium finishes throughout. Don’t miss out on this incredible property that offers luxury, comfort, and room to grow in a prime location.
Property Details
-
Property Size 2780.00 sqft
-
Land Area 0.22 sqft
-
Bedrooms 5
-
Bathrooms 4
-
Garage 1
-
Year Built 2015
-
Property Status Active
-
Property Type Detached, Residential
-
MLS Number A2244601
-
Brokerage name Coldwell Banker Vision Realty
-
Parking 7
Features & Amenities
- 2 Storey
- Asphalt Shingle
- BBQ gas line
- Built-in Features
- Central Air
- Central Air Conditioner
- Central Vacuum
- Closet Organizers
- Concrete Driveway
- Deck
- Dishwasher
- Double Vanity
- Electric Stove
- Enclosed
- Family Room
- Finished
- Forced Air
- Full
- Garage Control s
- Garage Door Opener
- Gas
- Granite Counters
- High Ceilings
- In Floor
- Kitchen Island
- Microwave
- No Smoking Home
- Open Floorplan
- Oven-Built-In
- Pantry
- Pergola
- Primary Bedroom
- Private Yard
- Quad or More Attached
- Range Hood
- Refrigerator
- Schools Nearby
- Shopping Nearby
- Sidewalks
- Soaking Tub
- Storage
- Street Lights
- Sump Pump s
- Vinyl Windows
- Walk-In Closet s
- Walking Bike Paths
- Washer Dryer
- Window Coverings
- Wine Refrigerator
- Wired for Sound
Similar Listings
2611 25 Street SW, Calgary, Alberta, t3h 1n3
Elk Valley, Richmond, Bragg Creek, Calgary- Detached, Residential
- 6 Bedrooms
- 6 Bathrooms
- 2571.05 sqft
261197 Valley View Road, Rural Rocky View County, Alberta, T3P 1A2
NONE, Rural Rocky View County- Detached, Residential
- 3 Bedrooms
- 3 Bathrooms
- 2623.20 sqft
271104 Township Road 224, Rural Rocky View County, Alberta, T1X 2B2
NONE, Rural Rocky View County- Detached, Residential
- 4 Bedrooms
- 3 Bathrooms
- 3338.46 sqft
224035 318 Avenue W, Rural Foothills County, Alberta, T0L 1K0
Millarville Ridge, Rural Foothills County- Detached, Residential
- 4 Bedrooms
- 4 Bathrooms
- 3000.00 sqft
