- Home
- Residential
- Detached
- 94 Waterford Crescent, Chestermere, Alberta, T1X 3A2
94 Waterford Crescent, Chestermere, Alberta, T1X 3A2
- Detached, Residential
- A2272770
- MLS Number
- 7
- Bedrooms
- 5
- Bathrooms
- 2821.00
- sqft
- 2025
- Year Built
Property Description
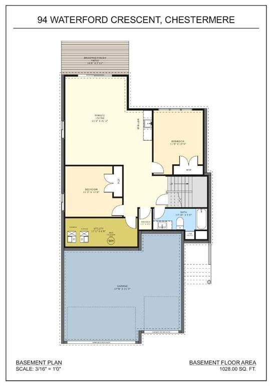
NEWLY BUILT!! BACKING ONTO GREEN SPACE!! WALKOUT BASEMENT!! TRIPLE ATTACHED GARAGE!! MAIN FLOOR BED & FULL BATH!! OVER 3800+ SQFT OF LIVING SPACE!! 7 BEDROOMS!! 5 BATHS!! Step into this stunning custom build offering luxury, space, and comfort across all levels. The main floor welcomes you with a bright living area featuring a beautiful fireplace, a spacious dining area with access to the BACKYARD DECK, and a chef-inspired kitchen with a HUGE ISLAND, premium built-ins, and a fully equipped spice kitchen. A full MAIN FLOOR BEDROOM & 3PC BATH makes this level perfect. Upstairs, you’ll find FOUR BEDROOMS & THREE FULL BATHS, including a serene PRIMARY BEDROOM with a walk-in closet and an elegant 5pc ensuite bath. Two additional bedrooms share a convenient Jack & Jill 3pc bath, while a fourth bedroom sits beside another 4pc bath. This level is completed with an upper-floor laundry room, a cozy BONUS ROOM, and an impressive open-to-below feature. The WALKOUT BASEMENT extends your living space with TWO MORE BEDROOMS, a 4pc bath, and a spacious family area — all leading directly to the backyard and GREEN SPACE VIEWS. A home crafted for comfort, luxury, and grace where every level brings more to embrace.
Property Details
-
Property Size 2821.00 sqft
-
Land Area 0.13 sqft
-
Bedrooms 7
-
Bathrooms 5
-
Garage 1
-
Year Built 2025
-
Property Status Active
-
Property Type Detached, Residential
-
MLS Number A2272770
-
Brokerage name Real Broker
-
Parking 6
Features & Amenities
Similar Listings
136 Creekstone Hill SW, Calgary, Alberta, T2X 5G6
Pine Creek, Calgary- Detached, Residential
- 4 Bedrooms
- 4 Bathrooms
- 3063.21 sqft
#405 1408 Spring Creek Gate, Canmore, Alberta, T1W 0N5
Spring Creek, Canmore- Apartment, Residential
- 1 Bedroom
- 2 Bathrooms
- 742.00 sqft
924 8 Avenue SE, Calgary, Alberta, T2G 0M3
Inglewood, Calgary- Semi Detached (Half Duplex), Residential
- 3 Bedrooms
- 3 Bathrooms
- 1876.60 sqft
137 Waters Edge Drive, Heritage Pointe, Alberta, T1S 4K6
Artesia at Heritage Pointes, Heritage Pointe- Detached, Residential
- 6 Bedrooms
- 6 Bathrooms
- 3387.00 sqft
